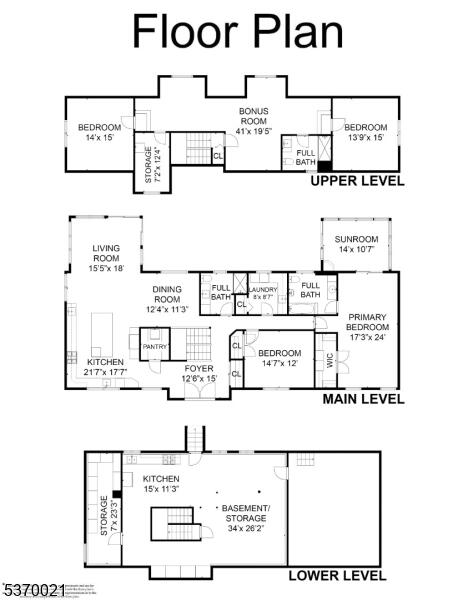
This spectacular over 3000 sq. foot expanded ranch totally rebuilt in 2023. Home is located in a quiet neighborhood on a cul-de-sac, features updates throughout its exterior and interior and boasts 4 bedrooms and 3 full bathrooms. Highlights include an oversized driveway with a 4-car detached garage and a bonus space for storage. Main floor offers updated kitchen with all the bells and whistles including, 2 sinks, 6-burner oven, built-in microwave, water filler, center island, SS appliances, quartz countertops, walk-in pantry and plenty of cabinet space. This open layout expands into a living room and formal dining room. Sliders allow access to trek deck which also leads to an outdoor kitchen and above ground pool. The patio boasts fans and heaters above making this fenced-in exterior a perfect spot to relax and entertain. Other rooms include, a full-size laundry room with sink and cabinets, a large bedroom, full bath, and a spacious master bedroom with attached bath and access to a jacuzzi room with air conditioning and entry to backyard. Upper level offers a bedroom, family room, office and full bath. Lower level provides a partially finished basement. Utilities are brand new and with all the updates throughout, this home is move-in ready! This listing is in a great school district and is close to shopping, restaurants and NYC transportation. A great home on a spacious lot.
18 Cleary Pl, Fairfield Twp. NJ 07004-1006
Property City
Fairfield Twp.
Property Price
$949,900
Rooms
9
Bedrooms
4
Bathrooms
3.00
Year Built
1950
Tax Annual Amount
$10255
TaxYear (*text)
2025
BathroomsFull
3
Roof (*text)
Asphalt Shingle
Floors No
Tile, Wood
Lot Size Area
0.46
MLS Status
Active
MLS #
4020968
Yearly Tax Rate
2.081
Year Built (*numeric)
1950
Basement
Yes
Roofing (*text)
Asphalt Shingle
Basement (*text)
Yes
Cooling (*text)
2 Units, Central Air, Ductless Split AC
FireplacesTotal (*text)
0
GarageSpaces
3
Heating
2 Units, Baseboard - Hotwater, Multi-Zone
Lot Size Dimensions
106X 189
Data import from
GSMLS