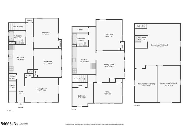
Welcome home to this well-maintained 5-bedroom, 3-bath Multifamily property ideally located just off the Garden State Parkway truly a commuter's dream. The tastefully updated first-floor unit begins with an inviting entry foyer that leads into a bright, sunlit living room designed for comfort and conversation. Down the hall, the kitchen showcases custom cabinetry, granite countertops, and appliances. The primary bedroom serves as a private retreat with a generous closet, while an additional bedroom and a full bathroom complete the unit. The second floor unit features a spacious living room, perfect for relaxing at the end of the day. The primary bedroom offers a large closet, while the second bedroom provides flexibility as a home office or den. Third bedroom and a full bathroom completes this unit. The full unfinished basement offers a full bathroom and presents excellent potential for bonus living space or storage. A one-car detached garage and ample driveway parking add convenience with off-street parking and additional storage options Ideally situated near major highways, shopping, and transportation, this property offers exceptional convenience and presents a fantastic opportunity for an investment property, owner-occupant living, or a unique living arrangement.
719 18Th Ave, Irvington Twp. NJ 07111-5174
Property City
Irvington Twp.
Property Price
$399,000
Bedrooms
5
Year Built
1928
Tax Annual Amount
$11377
TaxYear (*text)
2024
Roof (*text)
Asphalt Shingle
Lot Size Area
0.06
MLS Status
Active
MLS #
4008059
Yearly Tax Rate
6.197
Year Built (*numeric)
1928
Basement
Yes
Roofing (*text)
Asphalt Shingle
Days On Market
10
Basement (*text)
Yes
Cooling (*text)
Central Air
GarageSpaces
1
Heating
Baseboard - Hotwater
Lot Size Dimensions
35.42 X 74
Data import from
GSMLS