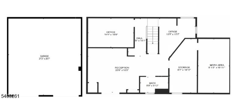
SELLER IS OPEN TO OFFERS. Lease to Own Possible. This property combines old school design with modern elegance and functionality, ideal for health care and many professional services. Upon entry, you're greeted by a very professional front foyer that sets the tone for the sophisticated atmosphere. Throughout,wood floors, tile and carpet span both the first and second levels, enhancing the warmth and style of the space. Over 10 private offices and meeting rooms provide the perfect environment for group meetings, exam rooms or strategic discussions. The recent addition seamlessly integrates with the original design, adding spaciousness and versatility.Located just 15 minutes from Route 78, this beautiful property offers easy access to Eastern Pennsylvania and is just 1 hour from New York City and 1.5 hours from Philadelphia.Whether for a regional headquarters or an expanding business, this property's strategic location makes it an unparalleled opportunity for both convenience and prestige.
205 Route 31, Washington Twp. NJ 07882-1531
Property City
Washington Twp.
Property Price
$975,000
Year Built
1970
Tax Annual Amount
$15973
TaxYear (*text)
2024
Roof (*text)
Asphalt Shingle
Floors No
Carpeting, Vinyl-Linoleum, Wood
Lot Size Area
1.03
MLS Status
Active
MLS #
4008004
Yearly Tax Rate
4.011
Year Built (*numeric)
1970
Basement
Yes
Roofing (*text)
Asphalt Shingle
Days On Market
10
Basement (*text)
Yes
Cooling (*text)
2 Units, Central Air, Multi-Zone Cooling
GarageSpaces
15
Heating
2 Units, Cent Register Heat, Forced Hot Air, Multi-Zone
Lot Size Dimensions
1.03 ACRES
Data import from
GSMLS